CreativeHousePlans.com
Custom Home House Plans at Stock House Plan Prices!

The builder proven house plan site with personal service!

[Home] [News] [About Us] [House Plans] [Plan Options] [Accessibility] [Passive Solar] [What's Included] [Build Your Home] [Interior Design] [FAQs] [Letters] [Links]

Search For House Plans

Smaller House Plans
Under 2000 SF

Medium Sized House Plans
from 2000 to 3000 SF
Large House Plans
3000 SF and larger

Vacation Home Plans

 

Site Navigation
Home
Up
News
About Us
House Plans

Garage Plans
Plan Options
Accessibility
Passive Solar
What's Included
Build Your Home
Interior Design
FAQs
Letters
Links

ORDER A HOUSE PLAN
Visa and Mastercard accepted for any stock house plan purchase

American Express!

American Express credit card image

 
SSL Certificates

Click NOW to calculate the exchange rateClick NOW to calculate the exchange rateClick NOW to calculate the exchange rate

Use the handy XE.com Personal Currency Assistant for  calculating the exchange rate on your new house plan purchase
 

Editors Choice Site!
TopSites.com 5 Star Rated Site Click> to learn more

SITE MAP

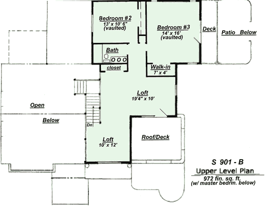
Southwest Adobe Style Model S-901B "Capri" Floor Plan

The master bedroom is on the main floor in this version of the model S 901.
CreativeHousePlans.com Southwest adobe style house plan upper level floor plan
Areas colored in green represent living space areas on this Southwest, Santa Fe style home.
Click to see the lower level floor plan of this adobe style home.

MORE �
Up
Main Floor
Upper Floor
Master Bedroom
S 901B Main
S 901B Pictures
 

CreativeHousePlans.com Contact Information:

Telephone Electronic mail
Sales: [email protected]
 
Customer Support & General Information:
[email protected]

303-838-2330
FAX 303-838-7567

Postal address

14104 Wandcrest Rd
Pine, Colorado, 80470 USA

MORE �  Home | Up

Web design & maintenance by TOP STOCK DESIGN Copyright � 2008 - 2013 Creative House Plans & Top Stock Design

 

CreativeHousePlans.comContact Information:

Telephone Electronic mail
Sales:[email protected]
 
Customer Support & General Information:
[email protected]

303-838-2330
FAX 303-838-7567

Postal address

14104 Wandcrest Rd
Pine, Colorado, 80470 USA

MORE � Home | Up

Web design & maintenance byTOP STOCK DESIGNCopyright� 2008 - 2013 Creative House Plans & Top Stock Design