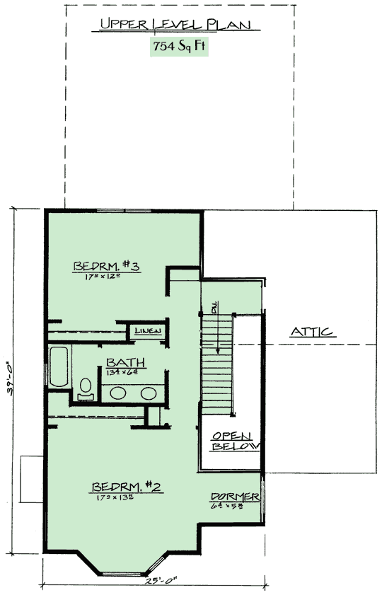
T-601 Tudor Upper Level Floor Plan

Tudor Plan upper level.
In this Tudor style house plan, the areas colored in green represent living space areas. (Overlooks are represented by white areas.)
Click here to see the lower floor plan of this Tudor style home.
MORE » [Up] [T 601 Lower Floor] [T 601 Upper Floor]
 

CreativeHousePlans.com Contact Information:

Telephone Electronic mail
Sales: [email protected]
 
Customer Support & General Information:
[email protected]

303-838-2330
FAX 303-838-7567

Postal address

14104 Wandcrest Rd
Pine, Colorado, 80470 USA

MORE »  Home | Up

Web design & maintenance by TOP STOCK DESIGN Copyright © 2008, 2009, 2010 Creative House Plans & Top Stock Design Last modified: January 14, 2010