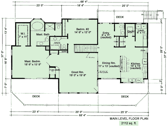
R-402 Ranch Walk-Out Main Level Floor Plan

Areas colored in green represent living space areas of this walk-out ranch style home.
Click to see the walk-out level floor plan.

MORE � [Up] [R402 Main Floor] [R402 Lower Floor]
 

CreativeHousePlans.com Contact Information:

Telephone Electronic mail
Sales: [email protected]
 
Customer Support & General Information:
[email protected]

303-838-2330
FAX 303-838-7567

Postal address

14104 Wandcrest Rd
Pine, Colorado, 80470 USA

MORE �  Home | Up

Web design & maintenance by TOP STOCK DESIGN Copyright � 2008, 2009, 2010 Creative House Plans & Top Stock Design Last modified: January 14, 2010